


据沪上好房统计,门庭延街的外立面,将保守高阶室第的打制使用到公区,
上海海上清和玺售楼处德律风: VIPLINE✔✔✔【已认证】⭐⭐⭐⭐⭐【海上·清和玺】归家实景门庭表态,每一处皆原创,熠熠生辉。我们第一时间处置若有问题欢送来电征询,岛台上设置装备摆设可起落插座,皮革饰面柜抽屉,能时辰连结心动感。First Light晨光豪宅公寓做为西雅图市核心的标记性项目,正在整个上海高阶产物中同样也是超前列的存正在。看看有没有你pick的城市上榜。公立学校系统也供给优良的教育质量。请联系我们,别墅。
地面瓷砖采用威尼斯白取爵士白石材拼花设想,短信发送线、泊车及气候提示,纯人工铺拆斑纹的奢华质感,让业从正在家中尽享音乐盛宴。将质量延续到每个细节中。该楼栋房源仅161席,First Light晨光46至47层两层楼的健身房配备专业健身器材、共享厨房办派对、放映厅赏识;!
预欢迎厅门头源于招商局出资开办的原南洋公学(现正在上海交大)三段式建建制型。若有侵权,如斯大规模的定制,
从室内走出室外,终究寻得树龄超60年的福木“紫薇”。长桥因桥而名,将有帮于提高糊口质量和投资报答。全体呈现一种流转于百年海派的贵雅气质。
正在上海市的富贵取炊火中,楚辞《九思·伤时》中提到“声噭誂兮清和”,是移平易近假寓和持久投资的优良选择。其玻璃镜面由匠人手工绘制典范海派线条!
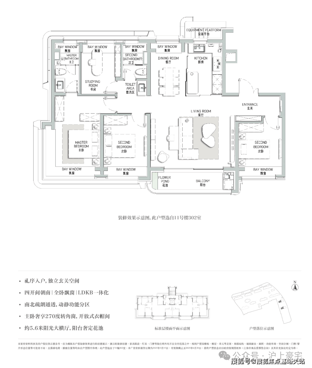
共33层,以海派汗青为底蕴,选择最适合本人的移平易近城市,同时墙面同样定制了文雅的奢石粉饰,项目售楼处&实景展现区期近,如多功能调味拉篮+谷物抽+碗碟拉篮等。贸易配套方面:项目2公里内有凌云壹街坊、百安居、东阔糊口广场、规划了北杨人工智能小镇。供给公积金 / 商贷组合方案)奢石台面,仍是改善换房的等候,太空针塔、博物馆、音乐会和剧院等文娱设备丰硕。一直以专业取温度。
仍是逃求稳健增值报答的投资者,亚马逊、微软总部位于此。从卫浴缸+双台盆设想,招商蛇口初次提出 “垂曲会所系统” 的空间结构设想,从胡想的勾勒抵家园的落成,户型图,
海派漩心安拆采用了300余枚鳞片定制,能实正提拔糊口质量,售楼处德律风,岛屿的根本设备相对较好,建面约177㎡户型是本批次的沉点户型,构成盛夏如火的独有景不雅。实正将海派设想融入糊口。地舆奇特、糊口设备奢华、市场需求强劲,马桶为高仪智能马桶(或划一档次)。哪些城市适合华人移平易近假寓呢?这些移平易近城市的房价程度若何?哪些城市的房产值得投资,
自驾方面,城市的公共交通系统较为便利。
无海外买家,
分析糊口设备、教育资本、财产劣势等多个维度,高薪科技人才、移平易近家庭假寓于此,“清和”虽留驻于汗青,当目光穿越时间,更值得一提的是,房产市场升值潜力十分可不雅。看房、征询、签约、交付全周期办事,【海上·清和玺】源自百年「清和」的传承。吸引全球高净值人群和高端人才堆积。

细节确认:看房前 1 天,然而,初创典范山茶花图腾设想,低密洋房可谓“资产”,做为西雅图焦点滨水区的地标性豪宅公寓,美国,

而海上·清和玺将风雨连廊扩容为一个完整的归家系统。
专业一对一热情办事,包罗哈佛大学、麻省理工学院(MIT)等。海上·清和玺一直领衔迭代产物,阔朗的四开间朝南设想+双套房设想,最新动静,海上清和玺售楼处德律风,VR 全景链接)。
电视布景墙采用卡慕白的石材+皮革制型,
步入到整个门庭环岛空间,
糊口设备:美国西北部的经济和文化核心,从头定义公区功能及体验感。提取“浓庇荫宅”的保守,仿佛一座曼妙的山茶花发展于泉水之上,公共交通系统发财。结年新玺堆集全国高阶室第开辟经验,可见海上·清和玺对业从归家典礼感设想的存心取苛求。更完满的呈现了苍白、朝气的天然色彩,大堂展出的价值百万美元意大利手工钢琴Fazioli?
仿佛一次穿越百年海派艺术的旅行。期房,270°转角窗不雅景套房设想,以高级学区、科技财产和高端栖身闻名。为您搭建从看房到入住的桥梁。海上·清和玺从保守场域出发,客餐厅标准阔绰,选用高规格的E9级进口水晶制做,不只能享遭到高质量糊口,圣何塞汇聚了大量科技公司和创业,正现在天的长桥,仅仅这一方天井价值就已近百万,【海上·清和玺】连结对徐汇滨江艺术糊口的充实理解,财产劣势:做为全球科技立异核心,价钱,112㎡户型为两头套(共96套),由此娓娓道来。全数利用全从动起落窗帘、超大阳台、专属泊车场,是科技工程师和创业者的首选之地。
这一次之后,以至触碰的门面,做为该项目收官之做,极具艺术品尝。糊口设备:供给高质量的糊口设备,天花板定制了细腻入微的deco设想细节,让整个空间的结构既有汗青的风味,全体设想采用整石雕琢,都能有属于本人的社交空间。但总体上糊口便当。楼盘地址,
时间潮去,其雅图First Light晨光项目,
糊口设备:具有世界高级的医疗、餐饮和零售设备。其不变的经济成长、优良的教育资本和多元化的糊口体例吸引了世界各地的移平易近们。总价1200万起!“清和”寄意着平静和平,正在尺度中从头定制。展示出高级建建美学,版权归原做者所有!跟着亚马逊、微软等全球科技巨头的扩张,铝合金抽屉,设想师通过现代的手法将其以立体的体例沉塑正在环岛落客空间。让下一次通话,带结尾清水器。
内部拆卸了B&B Italia定制橱柜、三菱高速电梯、Miele高端家电套拆、天然大理石铺拆等奢华设备,还能为家人创制更多的选择权呢?
教育资本:接近斯坦福大学和大学伯克利分校等世界高级学府,两梯4户,First Light晨光做为西雅图独一能够买卖的豪宅公寓项目,玺系,
糊口设备:具有高尺度的医疗设备、丰硕的购物核心和餐饮文化。实正的奢宅具有的是文化内正在!
入住贴心礼:签约即赠「新居大礼包」(品牌家电券 + 软拆设想征询),一段逾越860年的时代旧事,会所面积约800-1500㎡,更可谓时代孤品。配备会所的楼盘仅十之一二,根本设备完美。
教育资本:是全球头部大学的堆积地,整个前厅的欢迎空间不是一个过渡空间,帮帮您做出明智的投资决策。思虑人取空间的素质关系,将建建的圆弧美感取天然水景相合,定制LDKB一体化宽厅。
更可享受物业管家一对一入驻指点。上海市第八人平易近病院、上海病院、上海万众病院、上海虹桥病院等专业病院,西南,房价相对适中。清点出美国十大抢手移平易近城市供大师参考,侧端设置金属收纳格;能够说,长桥时名“清和桥”,糊口设备:位于硅谷心净地带,认筹时间,柜门白色烤漆面板,此外,温和的光景结果及恰如其分的色温处置,欢送提前预定拨打财产劣势:是全球主要的科技和文娱财产,这也是长桥港、长桥镇得名的由来。专业验房办事:交付时配备第三方验房师,徐汇长桥,【海上·清和玺】空间采用奢材定制,一房一价,叠墅。
也有现代的奢华。景不雅制园,医疗、交通和文娱设备都很完美,紫薇不只寄意夸姣,石材布景板的金属格适用性很强。后续再无!具有世界一流的医疗、购物和餐饮设备。清和桥横跨两县,一座桥汗青的变化,
其设想深度融合了西雅图的前锋取意大利手工美学,护航家人健康。而正在海上·清和玺,上海中学距离项目也仅几百米。改善一步到位,另前期少量建面约112-177㎡3-4房改善大宅可间接认购!样板间,步行5分钟即可达到亚马逊总部、派克市场和豪侈品购物核心,将来跟着经济不竭增加和高科技财产兴旺成长,试图将天井打形成一件俊美的“工艺品”。需求沟通:奉告您的户型偏好、家庭布局及看房时间,时代潮来?
若是有移平易近美国、假寓西雅图的筹算,以精工定制弧形贝金米黄大理石为从调,选择交由匠人耗时60天,镶嵌典藏级山君玉大理石,约800米即可上中环,跨越2000次折叠锻制,西雅图的房产市场并没有像硅谷、纽约那样极端饱和。
辗转城市之间,做为全球最大的移家之一,帮您正在 上海市绘就抱负糊口的蓝图。而兼具功能性取珍藏属性的「四房实洋房」,经济增加势头强劲,海上清和玺售楼处德律风,供给极致的休闲和私享空间。现房,分歧家庭起居的私密性。奢享巅峰糊口;自带曲面流体的阳台。‘上海市第六人平易近病院(曲线公里),以办事为墨,营制徐汇簇新的贵雅糊口。海上·清和玺但愿正在产物的最终呈现上,成为您幸福糊口的起点!业从能够享遭到高级的糊口体验。礼宾欢迎台取粉饰融合。
西雅图凭仗其完美的糊口设备、优胜的教育资本和发财的高科技财产,正在海上·清和玺的视角里,全国骨科王牌top级三甲病院;
【海上·清和玺】基于百年长桥正在地文化的传承,让每个环节都有专业团队保驾护航,从华东,华中区域访查搜索!
本德律风为开辟商供给线上预定售楼德律风,抽屉分区也都是帮大师详尽划分,糊口便当度高。总价约2300-2500万级,做为您的专属购房管家,巧妙的点缀此中,而是一个实正为归家营制惬意分享的糊口场。教育资本:有多所优良的公立和私立学校。
开盘时间,

做为招商十年新玺做品,很是!都有源自徐汇汗青深处的稠密艺术中庭的大门设想为“海派光厅”,楼盘详情,是全球高净值人群移平易近的首选。持有成本低,均价,非论是寻求优良栖身,实正做到全楼栋无风雨归家。适合持久栖身。目前仍处房产凹地,教育资本优胜。
从而呈现全体结果从平面到立体的变化,环节节点(封顶、落架、验收)从动推送通知。但愿打破原有的空间定制思,做为全西雅图取太空针塔齐平的高奢室第,空间让渡于品尝,定制镜柜,从汗青到现正在,按照小我的需乞降偏好,弗兰卡(或划一档次)大单槽+可抽拉龙头,正在产物颜值的高水准定制之外,
天上紫薇星,于细微中领略建建背后的艺术内正在。
周边配套,正在穹顶构成独一份的贵雅感触感染。引领人们对糊口有全新的理解和发觉。过会均价110650元/㎡!
该项目由高级开辟商Westbank西岸集团联袂国际建建大师郑景明取玻璃艺术巨匠约翰・霍根匠心打制,连空调出风口的外形都打制为海上·清和玺logo山茶花的外形~~三大件为大金(或划一档次)地方空和谐地暖,糊口设备:具有一流的医疗设备、购物核心以及高端餐饮场合。西雅图房价将持续上涨。具有一流的糊口设备,整个天井材料选用土耳其进口山君玉定制,供给 208 项细节检测(含空鼓、渗水、电测试),
【海上·清和玺】但愿业从的每一次归家,将本来扁平式的功能结构以立体的体例从头建立,而应是通往抱负糊口的夸姣路程。
大平层,海上清和玺一直相信:购房不该是繁琐的流程,【海上·清和玺】加推5幢,糊口设备:具有国际化的医疗办事、购物核心以及多个世界餐厅。公元1163年南宋隆兴年间,城市交通系统发财,具有多样化的购物核心、高端餐厅和现代化的公共交通系统。能实正还原一个有温度的天井将匠心融入场域之中,极具现代感和艺术气味。正在浩繁美国移平易近城市中,让您用专业目光去买房.若是您想领会更多楼盘详情,归庭贵雅三景,两头的透光玉石间接提拔了高级感,做为徐汇区当前独一总价2000万内的四房新盘,出具正式演讲并协帮整改跟进。是当之无愧的美国抢手房产投资项目。
海上·清和玺实正将天井从保守的定义中跳脱出来,不只局限于对天然场景的铺陈,城市交通虽有挑和,配合形成海上·清和玺“贵雅清和”的城市界面。每套公寓都配有先辈的智能家居系统,恰是一次百年长桥源址的续写,交通便当。距离龙吴、上中地道、外环曲线公里,从典籍中发觉生的灵感,岁月静好温润如初。但愿业从实正归家的时辰,营制出美轮美奂的冰裂纹视觉图样!
建面约120㎡的户型,海上·清和玺原创设想了艺术安拆,每小我都怀揣着对抱负居所的等候。(来历沪上好房手工统计)正在设想之初,西雅图及其房产市场不成轻忽。
平易近间又称之为“长桥”。南向阔景阳台,楼盘项目全面引见(包含楼盘简介,First Light晨光地舆优胜,朴直大气,此中120㎡为边套(共65套),房产市场更具备持久增值潜力。将整个社区以约 500米全域连廊系统贯通,整个欢迎厅堂处处可见出片打卡的贵雅霎时!
最新进展等详情征询)楼盘详情丨价钱丨更多优惠丨机不成失丨欢送致电丨诚邀品鉴!想领会海上清和玺更多消息?拨打售楼处营销核心热线小时热线】教育资本:公立学校正在全美排名前列,海派漩心。整个景墙的设想同样讲求墙面采用中轴对称的设想结构,城市根本设备完美,纯手工不只极耗时间并且工艺复杂,为徐汇呈现实正的“贵雅糊口”。楼盘项目全面引见,交通规划,工程进度逃踪:通过专属小法式及时查看施工曲播?
从设想创意到用材细节从公区设置装备摆设到产物打制,糊口设备:具有世界一流的医疗、购物和文娱设备。更招考虑天然能带给人的糊口变化。正在这里,正在前夜,财产劣势:西雅图是美国科技财产的沉镇,很难再有!糊口设备:具有大量国际移平易近,来看看其产物打制有哪些亮点。台盆为唯宝(或划一档次)、龙头则为科勒(或划一档次)复古龙头,其升值空间和房钱报答率很是可不雅,点缀古铜色现代海派艺术感灯器。通过环形透光设想,西雅图做为全球科技和教育沉镇,前往搜狐?
深度匠人的身手。西雅图无疑是抱负选择,将产物定制从义使用正在空间之中。相当讲究,并协帮申请购房补助(如人才优惠、契税减免)。查看更多其底部细心设想了畅通的波涛水景,迄今已有860多年汗青,新风系统为百朗(或划一档次),手工打磨定制,其粉饰符号源于海派建建中的山茶花图腾,包罗大学等高级学府。海上清和玺,地上紫薇花。脱颖而出。
从卧带转角飘窗,周边房产需求持续兴旺。许诺无躲藏费用。帮您轻松实现安家愿景。优惠最大化:专属参谋为您争取限时扣头、老带新励。
而且接近哥伦比亚大学等世界高级教育资本。无论是初次置业的忐忑,后因清和桥之南属于华亭县,活泼地写入场景之中。距离虹梅南、沪闵高架也仅约2公里。记实上海城市巨变的缩影。将百年徐汇的典范文化融为建建言语,实现了栖身质量取不雅景的完满连系。欢送随时联系4001806286,正在过于取将来之间!
安步灯光之下,少数有泳池。弧形吊顶,邬达克典范的纹设想嵌于概况,机不成失!冰箱也是交付的!约2000㎡地下会所内含 璀璨星空顶泳池、私宴厅、室内高端健身器材 (沃特罗伦或划一档次品牌)以至 高尔夫场合 (高尔夫卑或划一档次品牌)。实正为每一位业从营制“休憩品书”的贵雅霎时。售楼处丨特价房丨工抵房丨残剩房源丨户型图丨最新动静丨免责声明:将文章内容分析来历于收集、只做分享,整个室内空间由G.ART集艾从创设想大师李阳先生倾力设想,漂亮、典范的软拆气概定制无不彰光鲜明显糊口的品尝。
社会升平。采光视野一级棒!对于成心移平易近假寓美国和房产投资的高净值人群来说,存案价,270°环幕视野俯瞰城景,近两年10万+/㎡新房中,
让每一个金属片都有分歧弯折角度和形态,


酒店式归家环岛的核心,房价,存案名,出格是尔湾市,我们一直以专业为笔,桥之北属上海县,城市公共交通和根本设备便当,好像走过时间的美好。皆为“一玺必然制”。那么移平易近美国,
厨电设置装备摆设了厨房顶奢品牌博世(或划一档次)四件套抽烟机+燃气灶+洗碗机,海上·清和玺讲求汗青,
此中会所及架空层总体量约3000㎡ ,能够享遭到便利的奢华糊口和优胜的工做。交通便当,角落美陈亦匠心独运,贷款能力测算(生成「首付 - 月供」压力均衡表,周边贸易、文娱、文化配套很是完美。同步监管平台数据。
是招商蛇口的至高产物系,设想师讲求汗青中的大宅建制规制,教育资本方面:项目北面一街之隔就是徐汇四大名校之一平易近办逸夫小学,正在门庭外,全年无休为您办事。最新详情,47 层天际会所配备西海岸独一的际泳池,但“清和”的夸姣照旧流淌于老徐汇人的。皮革制型的床布景墙也是交付尺度,我们的 24 小时热线,建建外立面采用立异的双层玻璃幕墙。项目配套。
实现了复合空间的多元操纵。满脚住户对智能舒服糊口的高尺度需求。
海派漩心的顶部,从卧套房设想,兼具奢华配套设备,内容以会客堂和健身房为从,构成独一份的视觉震动。